会社概要
業務内容
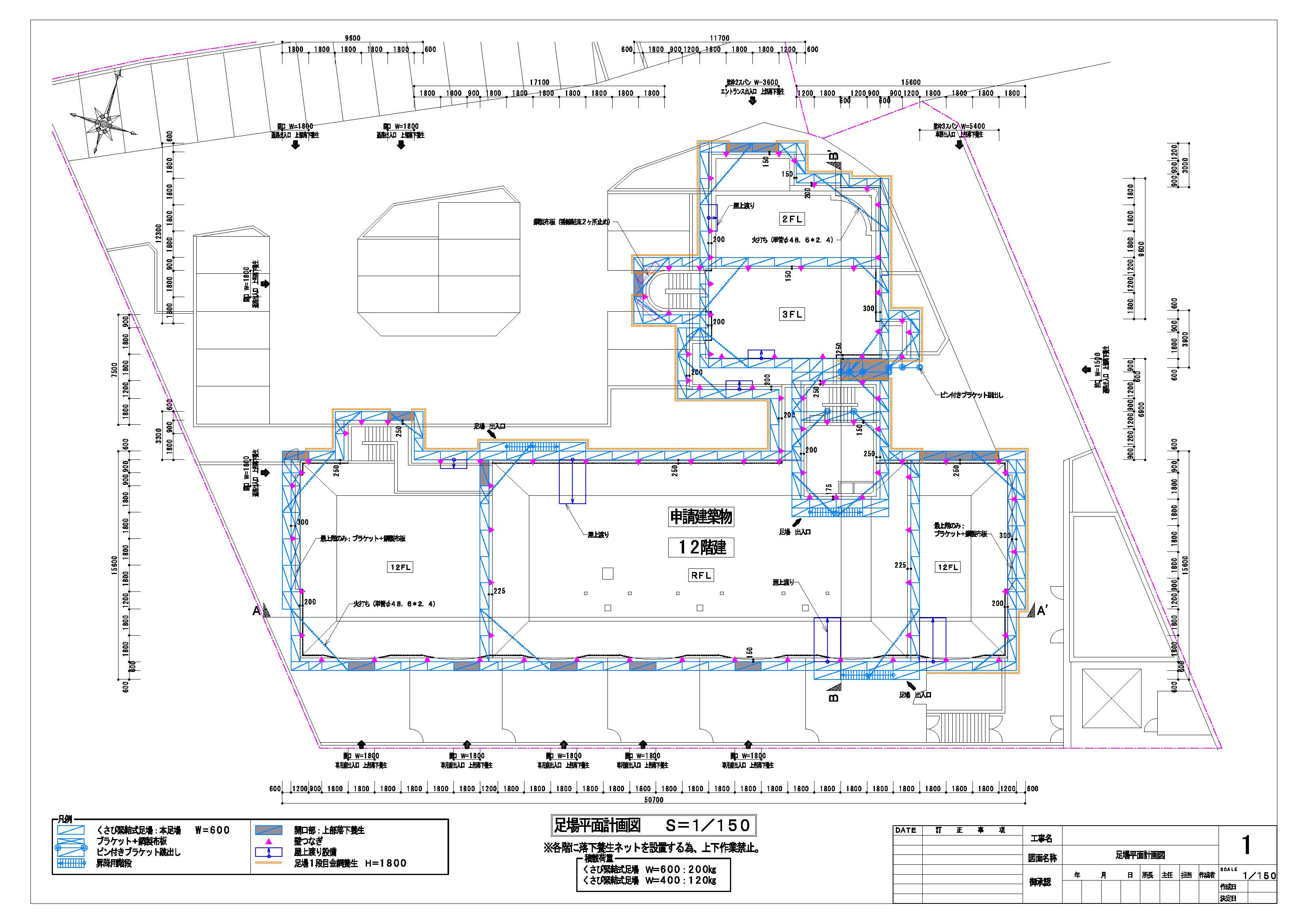
キャディングの図面
お問い合わせ
GALLERY